Проект 80-11
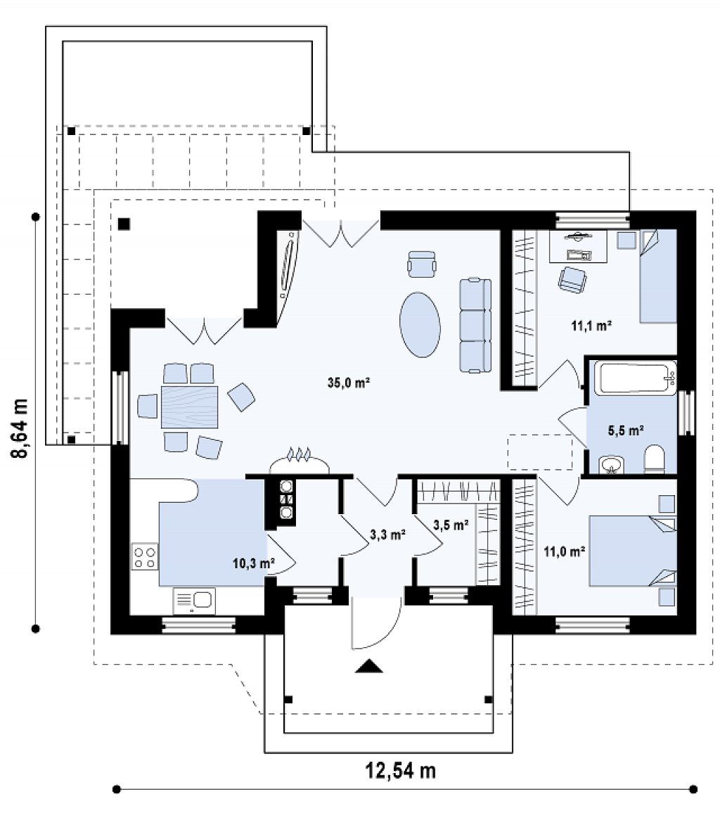
Общая площадь:79,6 кв.м.
Площадь застройки:99,8 кв.м.
Размеры:8,64 x 12,54 м.
Получить консультацию
*Перепланировка под ваши требования бесплатно
*Изменение размеров дома бесплатно
Закажите 3D-визуализацию
будущего дома!
будущего дома!
Контакты
Телефон:
Почта:
Адрес
460000, г. Оренбург, ул. Монтажников, 23